Built IN Veterinarian Medicine cabinet


Built in Vet Medicine Cabinet
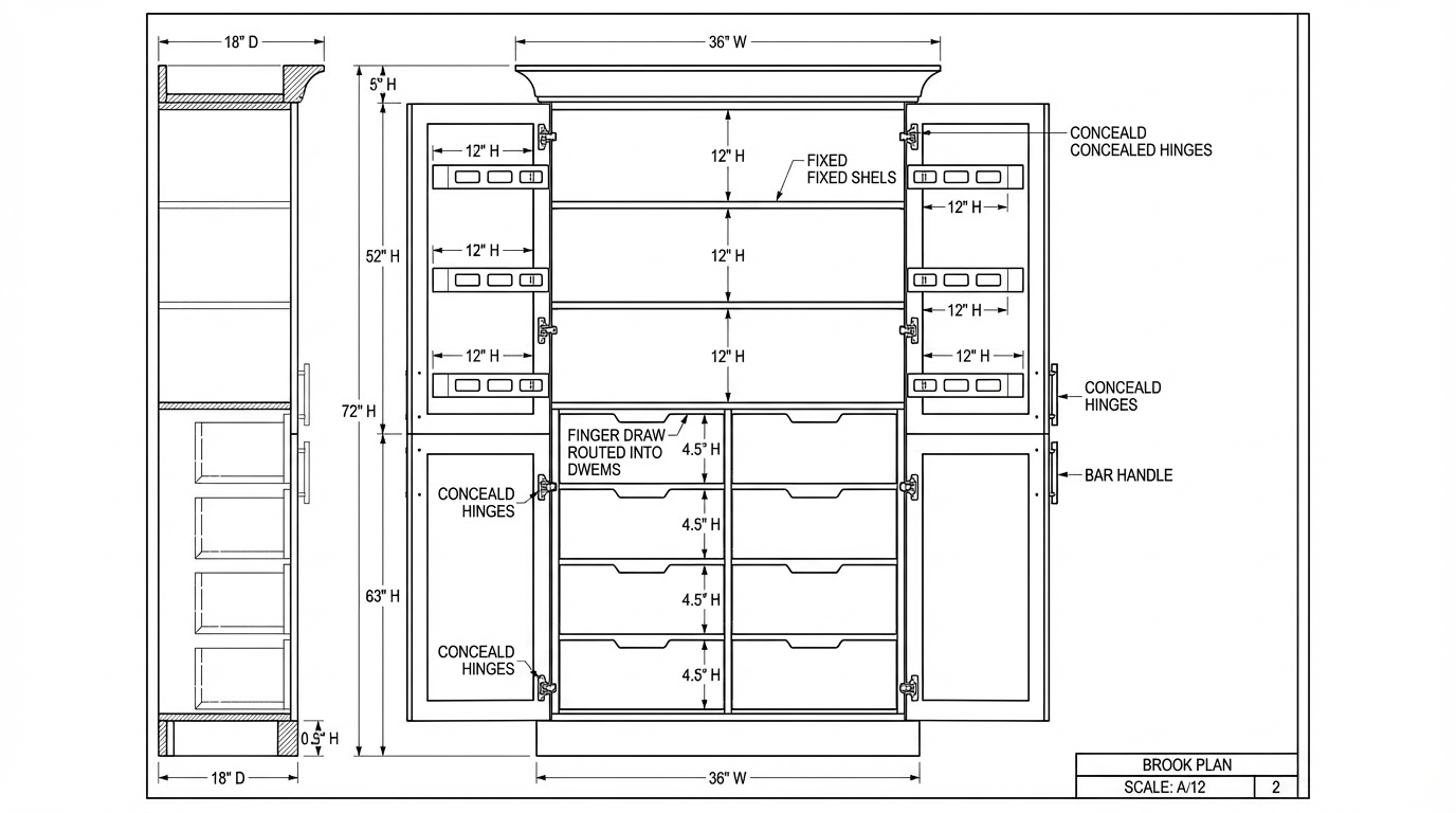
A Full Height Vet Medicine Built In Cabinet.
Designed for the realities of daily horse care, this built-in vet cabinet brings quiet precision and refined craftsmanship to the heart of your tack room. Every detail is purpose-built to store veterinary supplies, medications, syringes, and essentials in a clean, organized, and secure environment. so nothing is ever misplaced when timing matters. Integrated cabinetry elevates function without visual clutter, seamlessly blending into your tack room while maintaining the elevated aesthetic expected in a world-class barn. This is not a retrofit or an afterthought—it’s a professional-grade solution, designed to support better care, safer storage, and a more efficient barn routine, all wrapped in the elegance of custom craftsmanship.
The exterior is fully customizable. From rich stains, to any custom paint color, and complete the look with your preferred style of casters.
✔️ Industry-first antibacterial rubberized countertop
✔️ Built-in apothecary drawers
✔️ Precision medicine-bottle grid inserts
✔️ Full-extension soft-close drawers
✔️ Modular interior organization
✔️ Commercial-grade locking casters
✔️ Durable furniture-grade construction
✔️ Customizable stains and paint colors
✔️ Hardware options in brass, stainless, or matte black
✔️ Designed for efficient barn workflow
Also available as a Rolling Vet Cart here.
Built-in Vet Cabinetry Options:
Door and Drawer Front Options:
Stain or Paint Finish:

Sample Stains, or specify your own:

Solid Colors or choose any Benjamin Moore or Sherwin Williams color:

Drawers : Limitless Storage Solutions:

Hardware Options:

Our Process:

We will walk you through all the choices and you will receive a final confirmation email for approval before any work begins.

Fully Custom & Ready to Ship: 6 - 8 weeks
Free pick-up near Reading, PA & Wellington, FL. We're able to assist with shipping through installation. Please see our Shipping & Installation information to learn more.
If you'd like to discuss your custom color, stain or other details like engraving, we would love to talk about your ideas. We now have scheduling available through the contact page.

The Founder's Story
Matt Golden
Chief Dust Maker

For nearly 25 years, my wife Olivia and I have worked (and even lived) in the horse barns. Renting barns, rebuilding them, cleaning them, and eventually designing one of our own. Along the way, we learned that the best barn products are the ones that quietly solve problems you didn’t even know you had.
That philosophy led to Matt’s Fancy Barn Stuff, where my lifelong woodworking hobby grew into a workshop dedicated to building better barn furniture. Every piece came from firsthand experience—what breaks, what lasts, and what makes life easier for the people who use these spaces every day.
As we built and installed across the East Coast, one thing became obvious: the horse world had no true cabinetry solution. Barn owners were constantly trying to force standard kitchen cabinets into spaces with very specific needs. Nothing was built for the demands of a barn or the way equestrians actually use their rooms.
So we built it.
Tack Room Cabinetry was created to bring fine-furniture craftsmanship to the barn environment. Backed by a national cabinet manufacturer with 50+ years of experience, every piece is built in Pennsylvania using an all-U.S. supply chain and materials proven to stand up to time, moisture, and daily use.
Our mission is simple:
Craft cabinetry that blends refined design with real-world durability—turning everyday utility spaces into extraordinary, long-lasting parts of the barn.
I hope you see something here you didn’t know you needed.
In a well-designed barn, every detail matters.
Matt















